Аренда помещения свободного назначения

45 000 ₽/мес

21 260 ₽ за м²/год

25 м²
Площадь
1/1
Этаж

Поделиться

Добавить в избранное

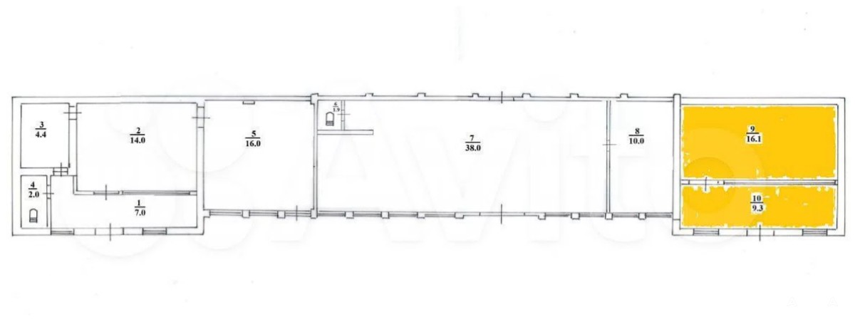
Номер лота: 12081 Россия, Московская область, городской округ Люберцы, рабочий посёлок Октябрьский, улица Ленина, 12Б Шоссе: Новорязанское Общая площадь: 25.40 м.кв. Предлагаю арендовать часть торгового павильона площадью 25 кв.м. на длительный срок. Здание в собственности, земельный участок под зданием в собственности. Павильон находится в первой линии центральной улицы р.п. Октябрьский (бывшая М5). Отопление электрическое, хвс.Коммунальные услуги не входят в стоимость аренды. Кол-во этажей: 1 ТИП КОММЕРЧЕСКОЙ НЕДВИЖИМОСТИ: ОТДЕЛЬНОСТОЯЩИЕ ЗДАНИЕ ТИП ДОГОВОРА: прямая аренда Материал дома: Кирпич 1 СУС Окна: выходят на улицу, Стеклопакеты

Дата обновления: 23 мая 2026